for modern living
Montrose
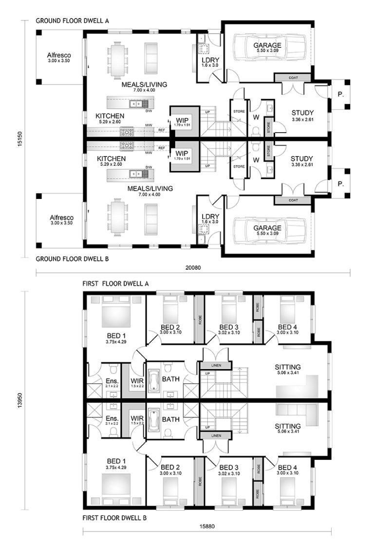
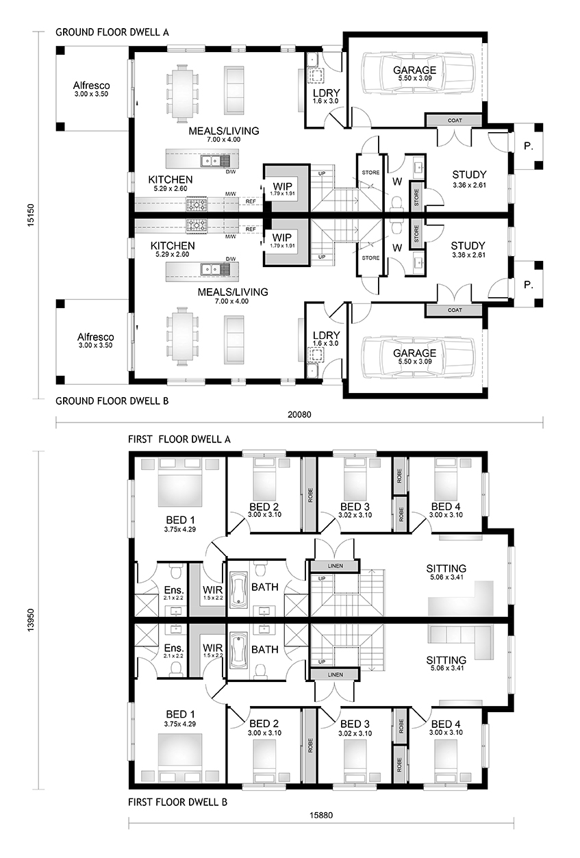
This modern duplex delivers style and functionality across two spacious levels. The ground floor features an open-plan kitchen, meals, and living area that seamlessly extends to the alfresco for effortless indoor–outdoor living. With ample storage, a secure garage, and quality finishes throughout, this home is designed for contemporary family living.





Montrose 25/25
COMBINED HOUSE WIDTH: 15.15m
COMBINED HOUSE LENGTH: 20.08m
Dwelling A: 25
4
2.5
1
-
TOTAL AREA230.99m2
-
SQUARES24.86sq
-
GARAGE21.09m2
-
PORCH2.29m2
-
ALFRESCO10.50m2
-
GROUND FLOOR89.80m2
-
FIRST FLOOR107.31m2
Dwelling B: 25
4
2.5
1
-
TOTAL AREA230.99m2
-
SQUARES24.86sq
-
GARAGE21.09m2
-
PORCH2.29m2
-
ALFRESCO10.50m2
-
GROUND FLOOR89.80m2
-
FIRST FLOOR107.31m2
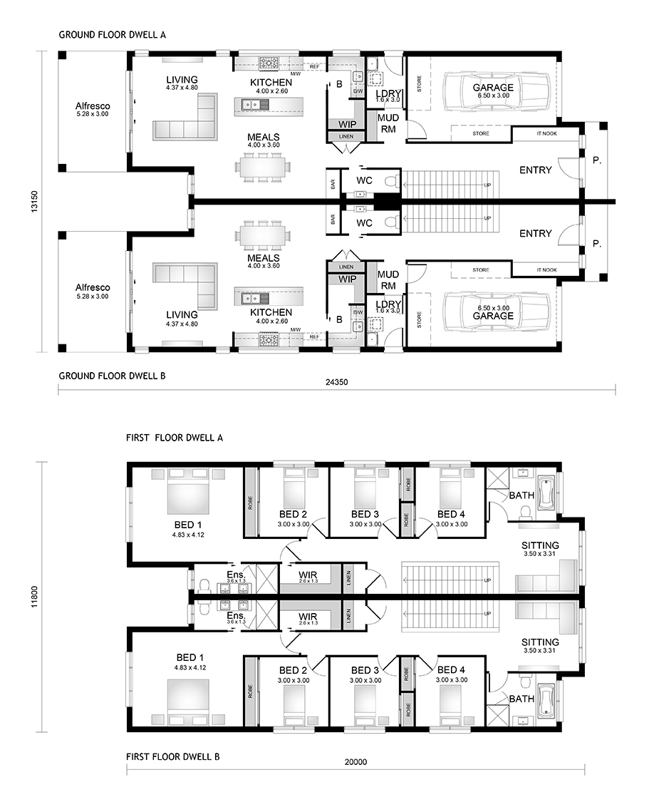
Montrose 28/28
COMBINED HOUSE WIDTH: 13.15m
COMBINED HOUSE LENGTH: 24.35m
Dwelling A: 28
4
2.5
1
-
TOTAL AREA256.35m2
-
SQUARES27.59sq
-
GARAGE25.00m2
-
PORCH3.52m2
-
ALFRESCO15.84m2
-
GROUND FLOOR99.91m2
-
FIRST FLOOR112.08m2
Dwelling B: 28
4
2.5
1
-
TOTAL AREA256.35m2
-
SQUARES27.59sq
-
GARAGE25.00m2
-
PORCH3.52m2
-
ALFRESCO15.84m2
-
GROUND FLOOR99.91m2
-
FIRST FLOOR112.08m2

Quality inclusions
Here at Practical Homes we offer an extensive range of premier inclusions and fixtures that allow you to start your new home journey with quality products in all the right places.
We have partnered with respected brands and suppliers to provide you with a home you will be proud of for years to come. From quality appliances to beautiful and quality stone benchtops, it is easy to see why. It pays to be practical.
VIEW OUR INCLUSIONS
The Premium Promotion
Up to $48,000 value
Upgrade your home without extra costs—premium finishes, energy efficiency and timeless designs included. Plus your choice of 3 added bonuses.
FIND OUT MORE
STRUCTURAL
GUARANTEE
MAINTENANCE
PERIOD
TURN-KEY
HOMES
30 YEARS
EXPERIENCE
FIXED
PRICE

7 STAR
ENERGY RATING
HIA
MEMBER
Montrose
A member of the Practical Homes team will be in contact to assist with your enquiry.




