for narrow lots
Sienna
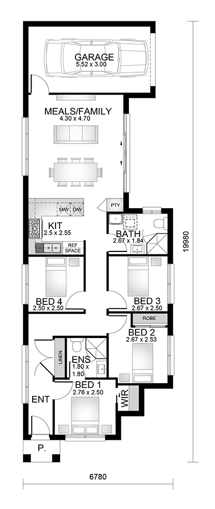
This 4 bedroom narrow block home design is great if you require a rear or detached garage option. Bedrooms off the main hallway allows centrally located bedrooms leaving all living areas including alfresco to the rear. This useful design is great for families who require the separation of relaxation and living.



Sienna 12
3
2
1
-
TOTAL AREA113.43m2
-
SQUARES12.21sq
-
HOUSE WIDTH6.78m
-
HOUSE LENGTH19.98m
-
GARAGE19.69m2
-
PORCH1.67m2
-
GROUND FLOOR92.07m2
Adjust our plans to match your vision
Here at Practical Homes we offer the flexibility to adjust our plans, to meet your unique style and needs.
LET’S TALK PLANSSienna 12 Bath
3
2
1
-
TOTAL AREA113.43m2
-
SQUARES12.21sq
-
HOUSE WIDTH6.78m
-
HOUSE LENGTH19.98m
-
GARAGE19.69m2
-
PORCH1.67m2
-
GROUND FLOOR92.07m2
Adjust our plans to match your vision
Here at Practical Homes we offer the flexibility to adjust our plans, to meet your unique style and needs.
LET’S TALK PLANSSienna 12 2 Living Rooms
3
2
1
-
TOTAL AREA113.43m2
-
SQUARES12.21sq
-
HOUSE WIDTH6.78m
-
HOUSE LENGTH19.98m
-
GARAGE19.69m2
-
PORCH1.67m2
-
GROUND FLOOR92.07m2
Adjust our plans to match your vision
Here at Practical Homes we offer the flexibility to adjust our plans, to meet your unique style and needs.
LET’S TALK PLANSSienna 17
4
2
1
-
TOTAL AREA158.64m2
-
SQUARES17.08sq
-
HOUSE WIDTH8.22m
-
HOUSE LENGTH20.50m
-
GARAGE19.50m2
-
PORCH1.79m2
-
ALFRESCO13.12m2
-
GROUND FLOOR124.23m2
Adjust our plans to match your vision
Here at Practical Homes we offer the flexibility to adjust our plans, to meet your unique style and needs.
LET’S TALK PLANSSienna 18
4
2
2
-
TOTAL AREA171.99m2
-
SQUARES18.5sq
-
HOUSE WIDTH9.490m
-
HOUSE LENGTH21.810m
-
GARAGE36m2
-
PORCH1.4m2
-
ALFRESCO10.5m2
-
GROUND FLOOR124.09m2
Adjust our plans to match your vision
Here at Practical Homes we offer the flexibility to adjust our plans, to meet your unique style and needs.
LET’S TALK PLANSSienna 18 Detached Garage
4
2
2
-
TOTAL AREA171.96m2
-
SQUARES18.5sq
-
HOUSE WIDTH8.070m
-
HOUSE LENGTH25.300m
-
GARAGE36.59m2
-
PORCH1.4m2
-
ALFRESCO8.75m2
-
GROUND FLOOR125.22m2
Adjust our plans to match your vision
Here at Practical Homes we offer the flexibility to adjust our plans, to meet your unique style and needs.
LET’S TALK PLANS
Quality inclusions
Here at Practical Homes we offer an extensive range of premier inclusions and fixtures that allow you to start your new home journey with quality products in all the right places.
We have partnered with respected brands and suppliers to provide you with a home you will be proud of for years to come. From quality appliances to beautiful and quality stone benchtops, it is easy to see why. It pays to be practical.
VIEW OUR INCLUSIONS
The Premium Promotion
Up to $48,000 value
Upgrade your home without extra costs—premium finishes, energy efficiency and timeless designs included. Plus your choice of 3 added bonuses.
FIND OUT MORE
STRUCTURAL
GUARANTEE
MAINTENANCE
PERIOD
TURN-KEY
HOMES
30 YEARS
EXPERIENCE
FIXED
PRICE

7 STAR
ENERGY RATING
HIA
MEMBER
Sienna
A member of the Practical Homes team will be in contact to assist with your enquiry.






