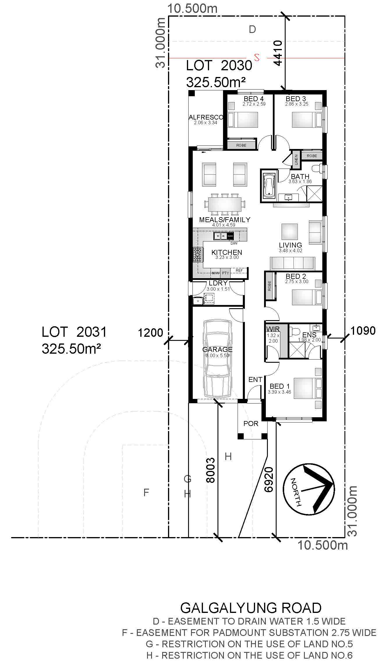
HOUSE & LAND PACKAGE
Lot 2030, Galgalyung Road, Austral - Rego Mid 2026
$1,074,000

Façade image for illustration purposes only.
Monaco
4
2
1
Single Storey
-
TOTAL AREA160.21m2
-
SQUARES17.25sq
-
HOUSE WIDTH8.21m
-
HOUSE LENGTH19.67m
-
GARAGE18.56m2
-
PORCH3.42m2
-
ALFRESCO6.88m2
-
GROUND FLOOR131.35m2
HOUSE & LAND
Package inclusions
- Thermal Comfort with Envirowrap to your H2 Treated Frames
- Colour Concrete Driveway
- External Non-Slip Tiles to Porch, Alfresco and Balcony (If Applicable)
- Quality Designer Carpet to Staircase, all Bedrooms and Leisure
- Designer Ceramic Tiles to Entry, Foyer, Kitchen, Family and Dining/Meals
- Quality Reverse Cycle Ducted Air-Conditioning
- Bosch Alarm System including Alarm Control Panel & 3 Sensors
- Insect Mesh Fly Screens to all Opening Windows With Vertical Blinds to All Clear Glazed Windows & Sliding Doors
- Omega 900mm Freestanding Electric Induction cooktop and oven
- Omega 900mm Stainless Steel externally ducted canopy rangehood
- Plasterboard Bulkhead to above overhead cupboards
- NBN Basic Setup
- 3000L Slimline Rain water Tank
- Mirror Sliding Doors to Bedroom Robes
- Oyster Lights to each room
- Smooth Transition to Wet Areas With Illusion Semi-Frameless Shower Screen
- Wall Hung Vanity With Moulded Top
- Stylus Prima II Close Coupled Toilet with Soft Close Seat
- Ducted Exhaust Fans to Main Bathroom, Ensuite, Powder and W.C*
- 1200mm High Tiling to Bathroom, Ensuite, Powder Room and WC*
- Sarking to Underside of Roof Tiles With Whirly Birds/Eave Vents to Roof Space
*May exclude some sites, subject to house design and facade.
FIND OUT ABOUT THE
Lot 2030 Galgalyung Road, Austral
A member of the Practical Homes team will be in contact to assist with your enquiry.
New display home
coming soon
Crownland Living
in Leppington

VISIT ONE OF OUR STUNNING
Display homes
Leppington
Leppington Living
3 Saturn Street
Leppington NSW 2179
3 Saturn Street
Leppington NSW 2179
Opening hours:
Mon, Tues, Wed, Sat, Sun
10am-5pm
Mon, Tues, Wed, Sat, Sun
10am-5pm
Menangle Park
Menangle Park Display Village
11 Poseidon Street
Menangle Park NSW 2563
11 Poseidon Street
Menangle Park NSW 2563
Opening hours:
Mon, Thu, Fri, Sat, Sun
10am-5pm
Mon, Thu, Fri, Sat, Sun
10am-5pm
Box Hill
Homeworld Box Hill
5 & 7 Gittel Street
Box Hill NSW 2765
5 & 7 Gittel Street
Box Hill NSW 2765
Opening hours:
Mon–Fri appointment only
Sat–Sun 10am–5pm
Mon–Fri appointment only
Sat–Sun 10am–5pm
STRUCTURAL
GUARANTEE
MAINTENANCE
PERIOD
TURN-KEY
HOMES
30 YEARS
EXPERIENCE
FIXED
PRICE

7 STAR
ENERGY RATING
HIA
MEMBER

