HOUSE & LAND PACKAGE

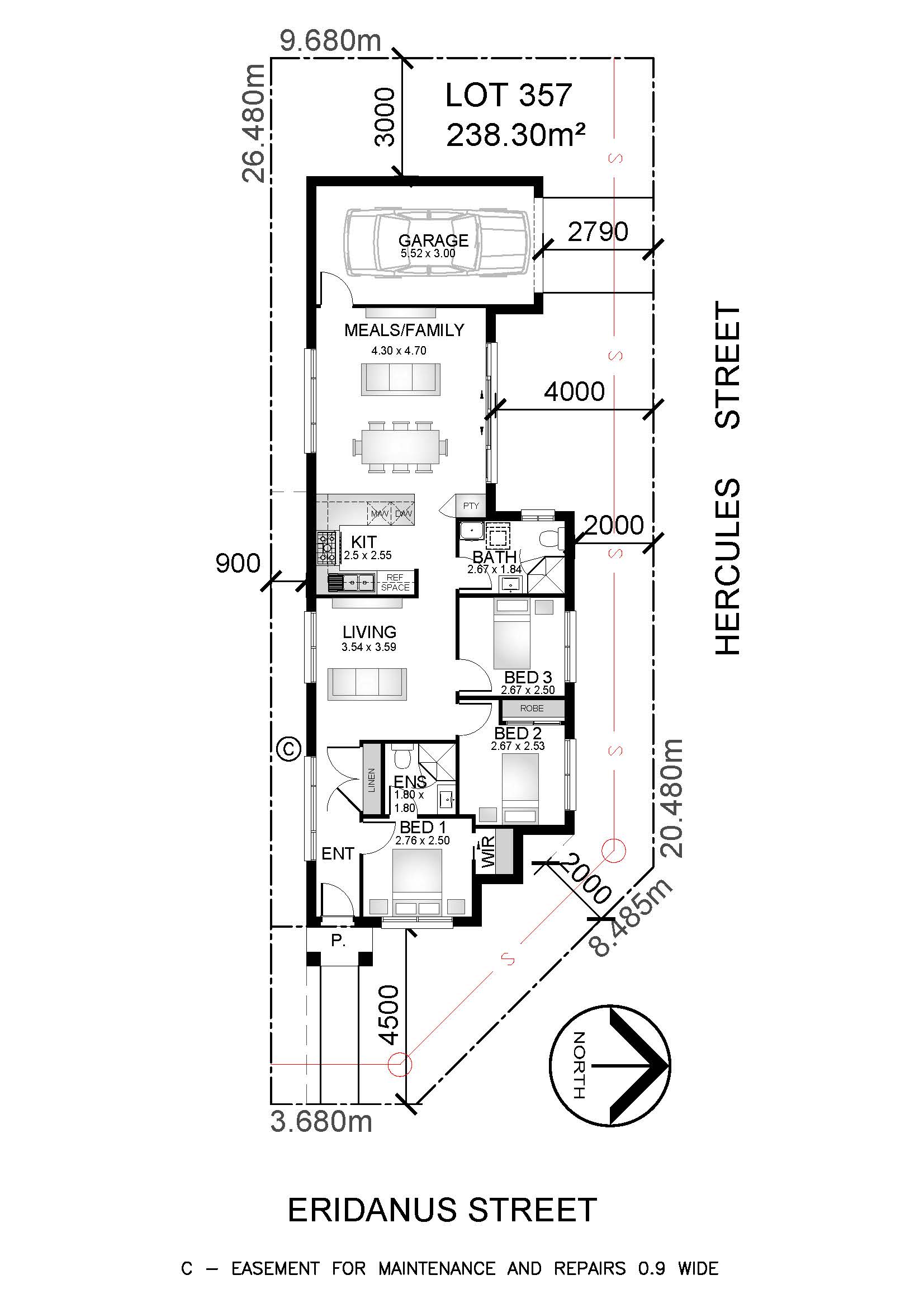
Lot 357, Eridanus Street, Austral

$887,000
img
Façade image for illustration purposes only.

Custom

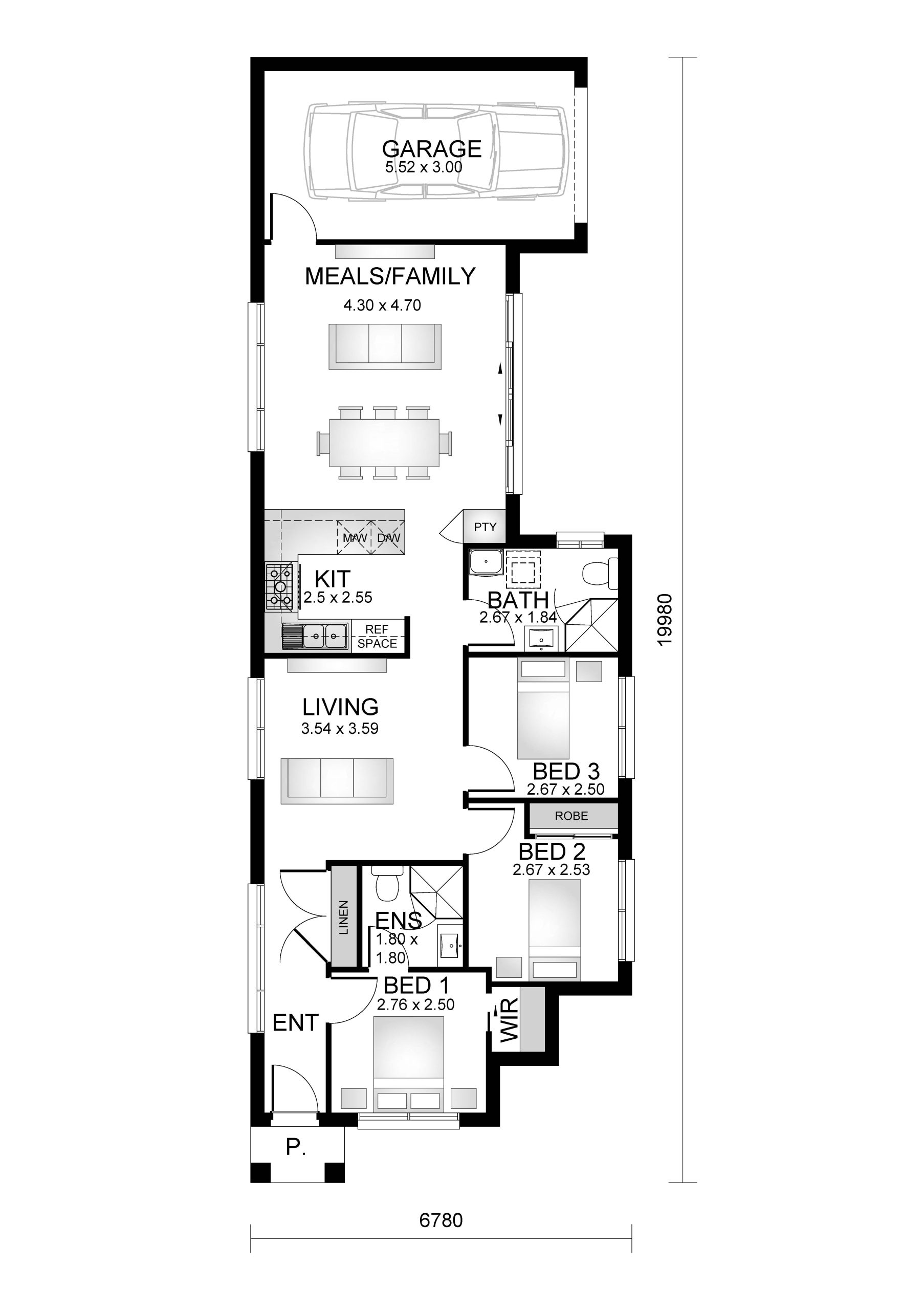
  • 3
  • 2
  • 1
  • TOTAL AREA
    113.43m2
  • SQUARES
    12.21sq
  • HOUSE WIDTH
    6.78m
  • HOUSE LENGTH
    19.98m
  • GARAGE
    19.69m2
  • PORCH
    1.67m2
  • GROUND FLOOR
    92.07m2
img
img
HOUSE & LAND

Package inclusions

  • Thermal Comfort with Envirowrap to your H2 Treated Frames
  • Colour Concrete Driveway
  • External Non-Slip Tiles to Porch, Alfresco and Balcony (If Applicable)
  • Quality Designer Carpet to Staircase, all Bedrooms and Leisure
  • Designer Ceramic Tiles to Entry, Foyer, Kitchen, Family and Dining/Meals
  • Quality Reverse Cycle Ducted Air-Conditioning
  • Bosch Alarm System including Alarm Control Panel & 3 Sensors
  • Insect Mesh Fly Screens to all Opening Windows With Vertical Blinds to All Clear Glazed Windows & Sliding Doors
  • Omega 900mm Freestanding Electric Induction cooktop and oven
  • Omega 900mm Stainless Steel externally ducted canopy rangehood
  • Plasterboard Bulkhead to above overhead cupboards
  • NBN Basic Setup
  • 3000L Slimline Rain water Tank
  • Mirror Sliding Doors to Bedroom Robes
  • Oyster Lights to each room
  • Smooth Transition to Wet Areas With Illusion Semi-Frameless  Shower Screen
  • Wall Hung Vanity With Moulded Top
  • Stylus Prima II Close Coupled Toilet with Soft Close Seat
  • Ducted Exhaust Fans to Main Bathroom, Ensuite, Powder and W.C*
  • 1200mm High Tiling to Bathroom, Ensuite, Powder Room and WC*
  • Sarking to Underside of Roof Tiles With Whirly Birds/Eave Vents to Roof Space

*May exclude some sites, subject to house design and facade.

FIND OUT ABOUT THE

Lot 357 Eridanus Street, Austral

A member of the Practical Homes team will be in contact to assist with your enquiry.

    New display home
    coming soon


    Crownland Living
    in Leppington
    img
    VISIT ONE OF OUR STUNNING

    Display homes